日期:2025-12-21 05:33:21
日期:2025-12-21 05:33:21

村自建合院,面宽约11.7米,占地约200㎡。它不张扬、不浮夸,却把乡愁、秩序与现代生活的舒适感,安安稳稳地放在了一起。

白墙黛瓦,尽显东方神韵
白墙黛瓦,是刻在中国人审美里的底色,建筑风格采用经典的苏派建筑元素与现代简约风格相结合。外墙大面积留白,搭配深灰色小青瓦坡屋顶,线条洗练而富有韵律感。
高低错落的屋脊:打破农村自建房常见的“盒子感”,从任何角度看,都有层次、有节奏。这种建筑美,不靠堆材料取胜,而是越看越顺眼。
私密围合:院墙不仅是边界,更是一种生活的仪式感,屏蔽外界喧嚣,内部自成天地。

一宅、一院、一世界
“宅中有园,园中有屋,屋中有院”。在这份方案中,设计师巧妙地利用L型排布,将院落空间最大化。
入户玄关: 步入大门,并非直视内室,而是通过一段影壁和回廊缓冲,保证了居家的私密性。
多重庭院: 主庭院之外,设计师通过连廊、开窗、天井,引入多个微型景观。晴天有光影流动,雨天可听水声回荡,真正做到“人在屋中,心在园里”。无论是午后品茗还是雨天观瀑,都能感受到“归心合院”的意境。

动静分区,三代同堂的体面
动静分区,三代同堂也能各得其所,一套好房子,最怕“看着好看,住着别扭”。合院的布局,从真实生活出发,兼顾社交与私密居住的功能型住宅。
一层:家庭活动的主场
大尺度客餐厅: 客厅宽敞明亮,与院落直接对话。餐厅设计了可容纳10-12人的大圆桌,满足乡村家庭聚餐的需求。
双厨房设计: 贴心地划分了“中厨”与“西厨(或备餐区)”,既适应柴米油盐的爆炒,也符合现代生活的简洁。
长辈套房: 一层南向或北侧设有带独立卫浴的套房,方便老人居住,免去爬楼梯的辛苦。

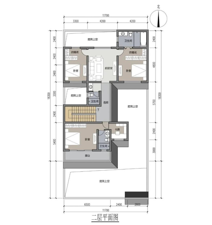
二层:安静、私密的休息空间
多卧室排布: 二层设有三间宽敞的卧室。主卧自带步入式衣帽间与奢华卫浴,私密性极佳。
空中露台: 较大的室外露台不仅增加了活动空间,更是晾晒、观星、烧烤的最佳场所。
书房/起居室: 中间区域设置了二层起居室,是家人私下交流的温馨角落,动静分开,热闹与安静各自舒服。

房子,从来不只是遮风挡雨的容器。它更像一个时间的容器——装下父母的晚年、孩子的成长,也装下我们对“回家”这件事的全部期待。
在农村建造合院,不必拥有夸张的造型,却有中式的骨架;不盲目复古,却保留了东方生活的秩序与温度。如果有一天你回乡建房,或许你想要的,也正是这样一座安静、耐看、能住很久的院子。
配资实力股票配资平台,配资网站排名,天天配资网提示:文章来自网络,不代表本站观点。